Home Planen und Bauen Gestaltungsbeirat Beispielhafte Projekte Wiehre, Heinrich-von-Stephan-Straße

Wiehre, Heinrich-von-Stephan-Straße

Neubau des Bürogebäudes "Milestone 3"

Eine ganze Meile

Das „Milestone 3“ beherbergt Büroräume, einen Konferenzbereich und ein öffentliches Café.
Der Haupteingangbefindet sich heutean der Heinrichvon-Stefan-Straße.

Bei diesem baulichen Meilenstein auf dem alten Postareal wollte man gezielt Innen- und Außenbereiche, öffentliche und halböffentliche Räume in Beziehung setzen.

Das „Milestone 3“ beherbergt Büroräume, einen Konferenzbereich und ein öffentliches Café.
Das „Milestone 3“ beherbergt Büroräume, einen Konferenzbereich und ein öffentliches Café.
Wesentliches Augenmerk lag auf der Gestaltung der Freiräume; hier der zentrale Innenhof.
Wesentliches Augenmerk lag auf der Gestaltung der Freiräume; hier der zentrale Innenhof.
Seitenansicht

Die Architekten böwer eith murken vogelsang gewannen im Jahr 2012 den städtebaulichen Wettbewerb zum ehemaligen Postareal in der Wiehre. Aus ihrem Entwurf ging der Bebauungsplan „Westlich Heinrich-von-Stephan-Straße“ (Plan-Nr. 4–63) mit insgesamt sieben Bauabschnitten hervor, die der Gestaltungsbeirat in der Zeit von 2014 bis 2020 beratend begleitete.

Auch mit dem „Milestone 3“, einem u-förmigen Bürobau in der Heinrich-von-Stephan-Straße 13, war der Beirat intensiv befasst. Die zur Erstberatung vorgelegte Planung dieses Gebäudes stellte eine Weiterentwicklung des ursprünglichen Wettbewerbs dar. Zu begutachten galt es besonders die architektonische Gestaltung des Baus, die Wechselwirkungen zwischen Innen- und Außenbereichen und die Gestaltung der Freiflächen.

Weil im Erdgeschoss unter anderem ein Betriebsrestaurant, ein Café und ein Konferenzbereich untergebracht sein sollten, sprach sich der Gestaltungsbeirat dafür aus, öffentliche und nichtöffentliche Räume im Grundriss deutlicher aufeinander zu beziehen. So empfahl er etwa eine Verlagerung des Haupteinganges an die Nordseite des Gebäudes, um so einen Bewegungsfluss vom öffentlichen Raum zum halböffentlichen Innenhof zu erreichen.

Erstvorlage

Lageplan der Zwillingsgebäude mit angedeuteter Freiraumgestaltung.
Lageplan der Zwillingsgebäude mit angedeuteter Freiraumgestaltung.
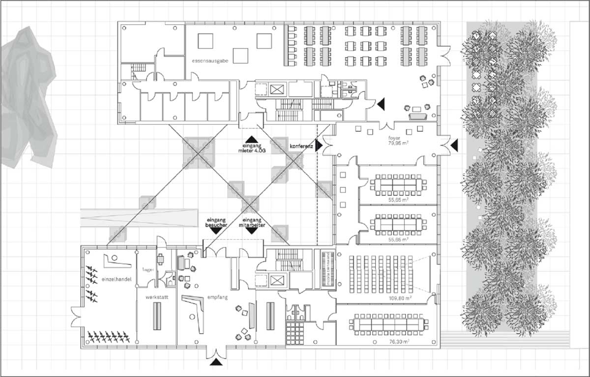
Erdgeschoss des u-förmigen Gebäudes mit komplexer Mischnutzung.
Erdgeschoss des u-förmigen Gebäudes mit komplexer Mischnutzung.
Gebäudeansicht von der Heinrich von- Stefan-Straße.
.Gebäudeansicht von der Heinrich von- Stefan-Straße.
Blick auf die Südwestseite des Gebäudes.
Blick auf die Südwestseite des Gebäudes.

Bei der Begutachtung der geplanten Freiflächengestaltung, denen im ganzen Bereich des ehemaligen Postareals eine Schlüsselrolle zukommt, lag das Augenmerk auf der Vermeidung von „toten“, beängstigenden Räumen. Der Beirat empfahl zudem, den Innenhof des „Milestone 3“ durch eine Verlegung der Fahrradrampe aufzuwerten. Dieser Zugang zur Tiefgarage solle deutlich näher ans Gebäude rücken oder gar ins Innere verlegt werden.

Sowohl in Hinblick auf die Proportionen der Fassade als auch für Teile der Innenräume erachtete man die ungewöhnliche Erdgeschosshöhe von 6,45 Meter als problematisch, zumal diese Proportionen auch starke Auswirkungen auf das bereits geplante Zwillingsgebäude des nächsten Bauabschnitts haben würden.

Im Vertrauen, dass seine Anregungen in angemessener Form in die weitere Planung aufgenommen werden, hielt der Beirat eine erneute Vorlage für nicht notwendig.

Stadtteil, Adresse Wiehre, Heinrich-von-Stephan-Straße 13
Bauherr_in STRABAG Real Estate GmbH, Freiburg
Architektur Böwer Eith Murken Architekten PartG mbB Freiburg bis 07/2022 mit M. Vogelsang
Freiraum Christian Bauer, bbz landschaftsarchitekten freiburg
Planungszeitraum 2018 bis 2020
Gestaltungsbeirat Erstberatung (12. Juli 2018)
Fertigstellung 2021
Auszeichnung Zertifikat „Gold“ der Deutschen Gesellschaft für Nachhaltiges Bauen

Fotos: Roland Halbe Fotografie, Stuttgart
Die verwendeten Abbildungen, Zeichnungen und Grafiken stammen von den beim jeweiligen Projekt genannten Architektur- und Planungsbüro und entsprechen dem Planungsstand der jeweiligen Sitzung im Gestaltungsbeirat.